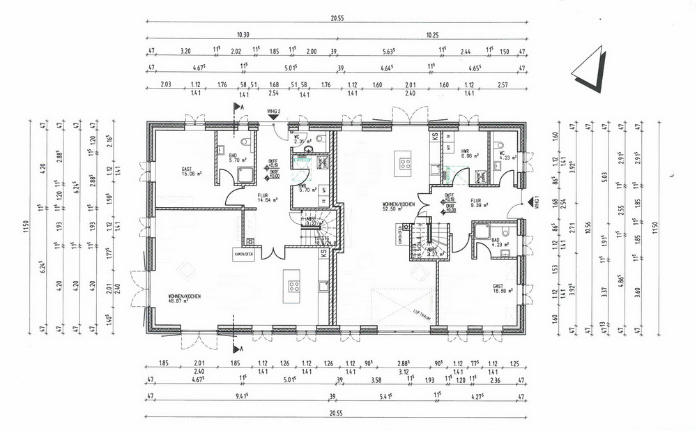
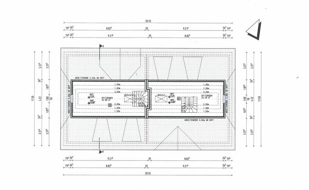
NEUBAU unter Reet im Dorf

Neubau unter Reet Nähe Dorfkern

- Realteilung

- ca. 205m² reine Wohnfläche

- Burgunder-Platten

- historische Baumaterialien (Verblender, Trügriffe, etc.)

- alter historischer Kachelofen aus Schweden